绿城“玻璃盒子”山地别墅
又一原创级作品
如今,绿城的中式宅院遍布全国各地,
诞生了不少神作, 当大家还沉浸在欣赏研究中式的时候,绿城画风突然转向了,创造出全新的、极简美学的顶豪——“玻璃盒子”别墅。
巧妙借助外面的山景,实现建筑与自然的融合
56幢“悬浮”的专利别墅
圆了宋卫平一个“山居梦”
宋卫平算是业界出名的理想主义者,一直以来从没有停止过对中国建筑的追求,绿城的桃花源项目,就是他颇为得意的作品。宋卫平用当代建筑来适应市场的同时,总是隐藏着不变的中国情怀。
在安吉桃花源的中心,三山两谷间,有56栋山地现代别墅从自然中长出,“悬浮”于山坡之上,像极了山林间浮起的朵朵闲云。
这是绿城首个“专利”现代山地别墅组团——新竹园,这一项目成为 “宋氏标准”的集中体现。从最初规划方案评审,到动工营造, 再到长达一年的申请、评审后,56栋建筑成功申请到国家专利,这一专利的含金量,让中国山居建筑从此有了分水岭。
▲ 鸟瞰图
这56栋从三山两谷间长出的建筑,在完整保留原生山水的基础上,突破传统别墅的建筑形态,用大面积玻璃窗代替传统门窗,最大限度将外部自然景观引进室内。
▲总平面图
三条山脊上,56栋山地现代别墅整体呈三字型横向排布,左右为邻,前后无所遮挡,依山而建,顺势而为。项目巧妙借助外面的山景,实现了建筑与自然的融合。
23年来绿城首个山地现代别墅
新竹园的设计师说:“这56栋现代建筑,应该和自然敞开心扉,相互拥有,所以我们选择了这样的‘悬浮’方式。”将别墅悬挑在坡地上,从而最大程度保留原生地貌和自然。
在选定悬挑的高度时,以“山坡树尖高度为准,
让别墅恰好浮于树尖上方”,完成与室外山景的共处,
吊脚部分以钢结构为主,让支撑建筑的柱体更显轻盈,
令建筑可以产生漂浮于山谷、丛林之上的视觉感受,
这才呈现出如今这56朵山中浮云般的惊艳设计。
超脱现代极简,“超扁平”更进一步,忽略墙体,
轻薄的边框退隐之后,建筑变得超级平,
忘掉前后和主次关系,
从而进入到一个更宽广的空间。
项目借鉴了中国传统山居吊脚楼的建筑形态,
从老工匠们的精雕细琢中获取灵感,
并传承着这些朴素匠人对手艺的虔诚精神,
于一钉一卯、一砖一瓦中,
与自然对话并重审传统与现代的关系,
将中国的山居建筑推向了一个“新高度”。
海拔100米,高差达41米的山脊上,56幢山墅依山而建
为了让建筑完全融于山林,
放弃传统高大院墙,以挑出式露台,完成与自然的共处。
建筑的南向,
采用大面积落地窗+金属边框的立面设计形式,
在满足通风采光的同时,
让每扇窗都成为自然写就的画卷,
居者可在举手投足间随时与自然交心。
极简的玻璃建筑美学,
以精美的材质与精湛的工艺,
并以独创的“系统化”的生活场景营造方式,
极简的现代立面、隐奢的庭院空间设计,
融合自然、缓慢、流动、审美的空间诗性品质,
当代成为隐逸美学的表达。
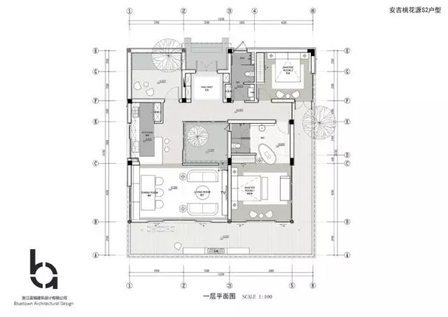
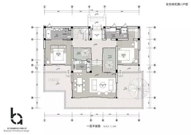
新竹园户型面积在126-203㎡
S1户型
建筑面积约126㎡
两室两厅两卫
户型采用“回”字形布局,室内设有一个面积阔绰的中空庭院,中庭左右两侧均是套房式卧室,且卧室均为南向采光并享有270°景观视野。
中庭南侧是拥有7.2米超大开间景观视野的一体化餐客厅,南向面宽达到14.4米,如此奢侈的面宽很大程度上得益于该组团超低的容积率。餐客厅一步可达30㎡以上的户外主露台。
内有中庭,外有露台,
以窗代墙,通透的不止是空间
一至二层低密建筑,户户豁达景观视野,
中庭串联户内空间,落地大窗邀来满目风景,
挑出式露台方便与天地谈心,
部分奢享下挂庭院,将自然融作背景。
超大尺度露台与云天相亲,
或独坐品月朗星稀,
或与挚友相聚享一段悠然时光,
每一幢都有天井点缀其间。
在收藏每一缕山风的同时,
也营造了一处悠远开阔的诗意大境。
而那一方下挂庭院,则是与大地共处的最佳场所。
外立面设置整面大落地窗来保证光照。
而为了“中和”所吸收的阳光,
相应顶部设计进深较大的雨篷,
夏季太阳高度角高,被雨篷遮住;
冬季太阳高度角低,阳光便可斜射入室。
内部设有1-2个天井庭院,
部分户型还有下挂庭院、耕乐菜园,
并附带地上独立车位、洗车平台等。
其他户型
L1户型
S2户型
从设计理念到营造施工,
传递出“天、地、人”乡融合的中国传统文化气质。
作为一个追求完美的理想主义者,
宋卫平在杭州造就了一个又一个经典之作。
从古典到现代的转变,是一个时代生活需求的转变!
责编:王铭俊
来源:搜建筑

湖南日报新媒体



