西侧外观. 此组图片© 吴清山
东南侧外观
徽派建筑的高墙深院,营造一方内向世界,成为人与自然沟通的媒介。安徽大学艺术与传媒学院校园采用“新徽派艺术聚落”的主题,以一种当代的视角探讨艺术院校的特质和本土建筑的特征。美术楼紧邻校园主轴线,周边自然景观优越。
西南侧外观
二层平台外侧
院落的封闭与开放
建筑主体采用方整内向的传统合院布置方式,合院由于东西南北四个巨大的取景口而呈现为“风车型”格局,化解了常规合院平面中阴角所带来的不利,也让室内外景观产生更为积极地互动,从而使静态的空间获得了某种动态感。
轴侧分析图
其中南侧取景口伸出悬空的栈桥,栈桥的轻巧开放与合院的厚重内向形成了戏剧性对比,挑战着人们的感官体验,凭栏远眺,感受空灵气息和周边美景。
二层入口
一层前院
内院
院落的二次尺度
主庭院通过报告厅的置入,将空间进行了“二次处理”以化解5层高的院落尺度。庭院被划分为两个既独立又联系的空间——由报告厅围合的一层入口小院和报告厅屋顶二层平台;同时,平台从内院向外延展成宽大的基座,加强了内院与周边景观的联系。
东西向剖面图
内院台阶
内院
二层平台
空间序列
由此形成张弛有致的建筑空间:从入口大厅进入由报告厅围合呈横向展开的一层院子;报告厅的厚实外墙如传统照壁般阻隔着视线,一侧的室外台阶暗示着院子在竖向和纵向两个维度上的延展;
入口大厅
一层开放展廊
二层展厅
五层画室
报告厅出口
二层平台外侧
触摸着富于质感的混凝土墙面拾级而上,台阶被刻意收窄,尺度逐渐逼仄,视野却渐趋舒朗,上至二层平台,透过3层高的巨大洞口可遥望远处的专业楼群;穿过洞口来到平台一侧,视线被进一步打开而获得全景视野。
三层内院
西洞口
材质与屋顶
水平木纹混凝土、木饰板、铝合金格栅、灰砖、小青瓦,这些或传统或现代的材料融入建筑的白色主调,以回应传统徽派建筑的粉墙黛瓦。如厂房般几乎满铺的锯齿形北向坡顶天窗,将柔和的光线引入顶层每间画室,外观上获得了个性地表达,让建筑屋顶不仅传达了传统意向,也具有更为积极地现实意义。
五层东洞口
五层敞廊
二层内院
四层敞廊
落日余晖
东侧外观
总平面图
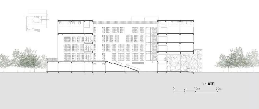
剖面图
二层平面图
体量分析图
建筑师:同济大学建筑设计研究院(集团)有限公司
地址:淮海大道,合肥市,安徽省,中国
建筑设计:陈强、王文胜、周峻、叶雯、陈剑如、周明旭、白庆韬
建筑面积:15370.0 平方米
项目年份:2018
摄影师:吴清山
同济大学建筑设计研究院(集团)有限公司
结构设计:金刚、姜世鑫、李熙
机电设计:陈义清、沈嘉钰、杨柳
责编:王铭俊
来源:ArchDaily

湖南日报新媒体



