(改造后的粮仓X号及广场夜景 摄影:文耀摄影)
原属于长沙城北郊的苏式粮仓始建于上世纪五十年代初,由前苏联专家设计,于1951年底竣工,属于长沙市第一粮食仓库,也是当时全国较先进的粮食储存库房,采用了建国初期最好的 “汉阳造”机制红砖瓦,由工匠以“梅花丁”砌筑法建造。
这种外形椭圆的房式仓为当时较有代表性的一种粮仓样式。因为是苏联专家设计,其样式采用了“檐部、墙身、勒脚”三段式的经典做法。
(改造前的粮仓X号)
沉睡
一直到上世纪八十年代末,以该类建筑为主体的大型粮仓储备基地仍承担着全长沙的粮食储备重任,有两条铁路专线和6座风雨站台。
该苏式粮仓原先共有十栋,高约14米,长约38米,宽约14米,每栋建筑均有八对逐级内收的构造柱,拱护着近60公分厚的墙体。屋顶采用木构人字梁,外铺以红瓦。20世纪90年代后,新的储粮技术和设施逐渐取代了老式的粮储设施,房式粮仓逐渐退出了历史舞台。
进入21世纪后,随着大规模的城市建设和房地产开发的兴起,长沙市第一粮食仓库规划外迁。至2016年底,仅剩下一座X号苏式粮仓。
唤醒
一个偶然的机遇,我们发现并关注了这座历史建筑,在与现业主多次交流后取得了再生利用的共识,并提出了保护性修复、功能性改造、前瞻性重生的三部曲激活计划。
基于极有限和并不准确的资料,我们团队进行了前期调研和现场测绘工作。整个改造计划本着“修复、重构、激活、重生”的理念,最大限度地保护老粮仓原有的建筑特点和历史记忆。以新的现代的元素对话旧的前工业化的历史特征,但长期的规划和前瞻同当前的利用是必须平衡考量的。功能的改变要使其适应当今的需求,使建筑和空间变得具有当代意义,但又必须同时兼顾合理性并最大限度地保持旧建筑的原有特性和遗存。
重生
我们做了如下工作:
首先,对旧建筑做清理、维护和加固,并对数十年间陆续加建的附加物做甄别和清除,对原建筑已朽烂的木构进行更换和加强的技术手段;
(清拆过程)
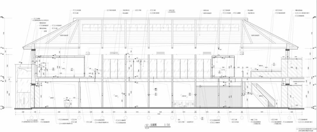
第二,基于粮仓的功能,旧建筑是一个只有通风而无采光的封闭体,除了环布建筑周圈的小通风窗外,欠缺功能改变后所需的基本条件。在不影响旧建筑外廓的前提下,设计团队在建筑的顶部沿人字坡两侧,东西向打开了通长的采光墙,大面积的自然采光由此解决,并带来良好的交流新风;
(正在开启的采光天窗)
(改造后的采光天窗及沙盘区)
(屋顶细部 )
(改造后的模型图 )
第三,沿东西南北轴向,各设一个出入口,并将其中西侧的侧向主人流的入口,作为主入口,以延长人流的动线;
第四,旧建筑外围整体下沉,形成小型广场,为今后的公共活动预留条件。无边镜面水池的设计,改善了周边的硬质环境,营造出通透感;
(一层平面图)
(二层平面图 ©黑龙设计)
(北侧入口和小广场 )
第五,建筑内的二次改造,均采用独立的钢构,与旧建筑轻分离,既不损害脆弱的旧建筑,又以新的建构方式与旧建筑产生对比的美。如玻璃盒子外罩的主要出入口,将原裸露的混凝土门檐保留,作为视觉的重点。
(入口 )
(洽谈区)
(展示区 )
(休闲区 )
(公共区的艺术装置 )
成功的历史建筑改造可以创造出文化、社会和商业的奇迹。旧粮仓的改造从一开始就引起了关注,初步的改造完成后也引来了好评。但成功的再生利用,还需要业主、有识之士和有关部门以非急功近利的心态持续维护和努力。
(洽谈区 )
(立面图 ©黑龙设计)
项目地点:中国·长沙
项目面积:1100平方米
业主:天健集团
旧改及环境设计:黑龙设计
室内设计:黑龙设计
灯光设计:黑龙设计
结构设计:华阳国际
空间摄影:文耀摄影
责编:王铭俊
来源:有方空间

湖南日报新媒体



