山水成林,基地自然环境优渥
项目基地在宁波城南,东钱湖度假区谷子湖北岸,基地三面环山一面临水,南临环湖道路,场地的资源条件得天独厚。而新完成的交通系统使这里离市中心车程缩短到了20分钟,这使整个居住社区缩小了和都市生活的距离。
宁波“山水城林”的融合是城市的基础地理特征,超过西湖面积的东钱湖水域辽阔,和宁波市域内的江河一起构筑起宁波特有的水网体系,而环湖区的山脉河道村庄水乡构建起具有当地文化特色的景区。同时白石仙坪山提供的高差使未来的建筑和场地拥有良好的视野,湖山的空间层次构成了极佳的自然人文风景。
基地周边植物的种类相当丰富,常绿温带林木和落叶植物交相辉映,加上掩映在原始地形中的数棵桂花树,丰富的四季林地景观时刻提醒我们这里是城市和自然的边界。整个基地的高差也加强了林木和湖区景观的互动。建筑师从一开始踏勘场地就意识到建筑规划和环境存在两个层次的互动:首先是访客从湖面的几个方向接近基地,这一过程中不同的视点转换观察到的建筑体量关系变化;其次是接近3000平米的建筑如何以合适的体型与背景山体、前景湖岸融合。
边界与融合,整体规划策略
由于地块条件相对地产开发较特殊,在长达数月的方案论证后,万科管理团队对这个项目周边的社区定位从旅游度假功能转变为高端城市居所定位(TOP系列住区);因此项目作为居住区配套功能的定位也从旅游服务改为体验型商业及会所。新的目标下,业主要求对地块做出相应的整体概念设计,同时突出建筑结合景观的一体化特色体验。
白石仙坪和谷子湖共同形成了用地狭长而不规则的形状,大住区位于地块西侧较为平坦的场地,我们认为“边界”是这块用地最显著的特征。特定的场所在建筑(住区)、山林、湖泊三者在有限的空间碰撞中产生。考虑到环湖路是进入基地的唯一道路,我们希望用建筑的手段加强这个边界的表现力,构思了三道清水混凝土的墙体将建筑平面轮廓和沿湖立面轮廓清晰地展示了出来,同时延长的“墙”形成了整个进入场地乃至住区戏剧化的第一层景观元素。
“边界”的意义还在于融合场地各种元素,同时“边界” 本身亦是对环境反馈作用后生成的场所。从功能上,场所提供的线性空间串接了“社区公共入口—访客接待—商业内街—会所”这一重要的体验流程。最后的决定是用单一体块组合的基本建筑语言,去适应功能、流线、风格等一系列复杂的需求,并通过角度、方向、材质的控制,积极与山体、与湖面产生对话。我们希望“墙”内外形成不同的感受,和沿湖一侧对比,山景一侧形成较为疏离的空间来呼应繁密林地构成的山景,这一处理最后实现的体验效果是理想的,来社区中心访客的行进过程从外部到内部均形成了不同的视觉焦点和体验。
空间尺度与动线
抵达建筑的本身也是一个体验建筑和湖山交互的过程;驱车从东钱湖南侧进入基地是最舒服的路线,也最能完整体验未来居住社区和环境的互动。向北远眺便能看到湖边轻盈的会所,接下来一路上便是丰富的湖山景色和多年形成的四季山体植被;行车至山前,建筑群才配合着一侧湖光徐徐展开。
“墙”的空间势能在于从自然感到都市感的导向。西侧公共入口设置了两组院落,第一重偏于城市广场概念,强调开放性和商业特征;在一侧连续的工业玻璃墙体引导进入二重院落,尺度的收缩体现出社区的管理的转换。对面的接待大厅体量在这里将轴线进行90°扭转,“边界”产生的场所在这里展开,与其他商业体量一起形成线性的组团空间,每个商业单体的尺寸定为9m * 14m,两两组合,之间通过平台形成空间限定,一端的会所一层为同样尺寸的商业单体,参与整体序列;二层14m * 32m的较大体量,作为整组建筑的高潮,也承载着展示区会所部分的主体功能。会所的朝向主面超东钱湖偏转展开形成最佳视线管控效果。从规划空间角度,“墙”建立起的领域感,使整组建筑体量融合舒展;沿湖界面形成丰富跳跃的图案关系,整体轮廓突出了二层的会所的可识别性。另一方面,对于“边界”的空间化和功能化,起了不可或缺的作用。
离开接待大厅,规划设置了引导访客的沿山步道,穿梭于自然林木之中,这个设计一是考虑场地高程的现状,从入口高程沿等高线缓缓抬升,比较容易到达会所二层的标高,从而会所体量上下功能可以分离;二是希望整个社区中心组团形成一个动线回路,适当的转换视角高度可以在进入会所前观察到坡地建筑体量丰富错落的屋顶,本身也是很有趣让人愉悦的体验;到了接驳会所二层的空中玻璃连桥处是俯瞰整个建筑群落的最好视点。规划从高差入手的几组空间转换,使访客不停地在自然和都市之间转换,丰富了场景体验。
整体的空间概念同样确定了社区中心作为住区开发示范区的动线:由远及近竹林甬道的领域感建立→沿湖弧形墙的引导→进入主入口后的商业广场→更进一步的接待前场→接待后场的上山步道→连桥进入二层会所→会所体验洽谈→楼梯回到一层商业街→导向实体样板房参观。
现代建筑质感与传统园林相结合
海派商业文明使宁波人眼界广阔,而扎实的制造传统令当地工匠技艺细致。考虑到住区品质的形象,业主希望能把细致的工艺和材料表现融入到整个建筑语言和景观环境中。会所的玻璃表皮采用1500X4500米的整块通高无框玻璃肋支撑幕墙,定制的彩釉玻璃通过竖向线条在立面不同朝向的疏密变化管控对外的视线,同时形成外观上的旗舰感受。玻璃上下线脚收边的控制材料构造分离的原则,确保立面不出现不同材料现场胶结的做法。屋顶结合中庭位置设置了一段坡屋顶,我们希望室内空间中植入一个空间层级,与环境产生呼应,站在住宅区阳台上眺望社区中心,屋顶肌理得到完整延续。
建筑群体的高度几乎在6米内,所以坡屋面的形式和材料需要能仔细的控制,最后采用直立锁扣的钛锌板在质感和构图上能较好融合环境。日式雨链的运用要求我们对建筑和景观构造做出相应节点连接处理,最后获得不错的现代化传统情境效果;金属百叶的形制为带弧线订制的T型截面,使建筑在不同的角度能呈现细致的光影变化;木色的檐下金属吊顶做了三次不等分收分,目的是削弱钢结构屋顶厚度,增加建筑轻盈感。不管是细部,还是整体建筑群体的空间组合上偏日本式庭园的尺度,除去情景打造的因素,我们认为这是一个切入点,也是可以将现代建筑的质感和相对传统的园林景观进行结合的表现手法。
图纸
总平面图
立面图
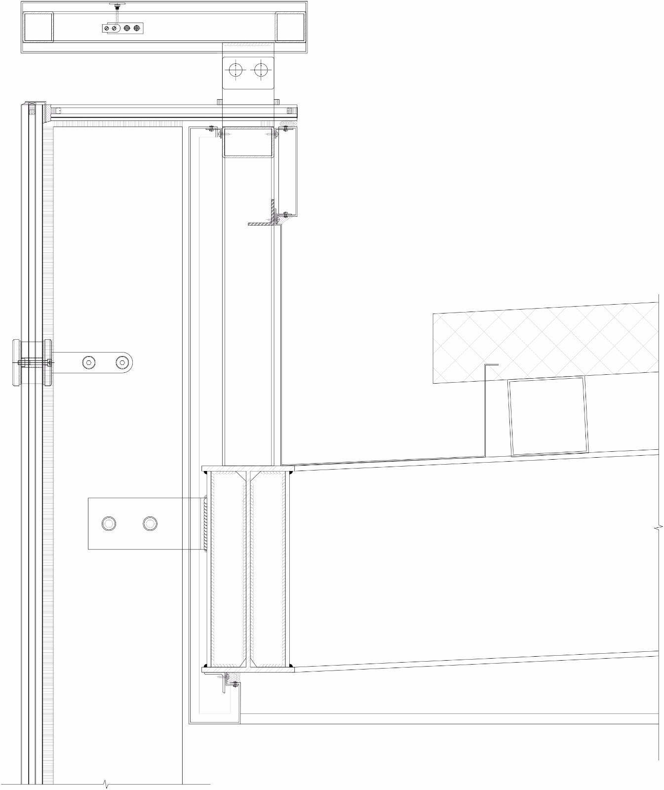
会所幕墙立面细部(顶部)
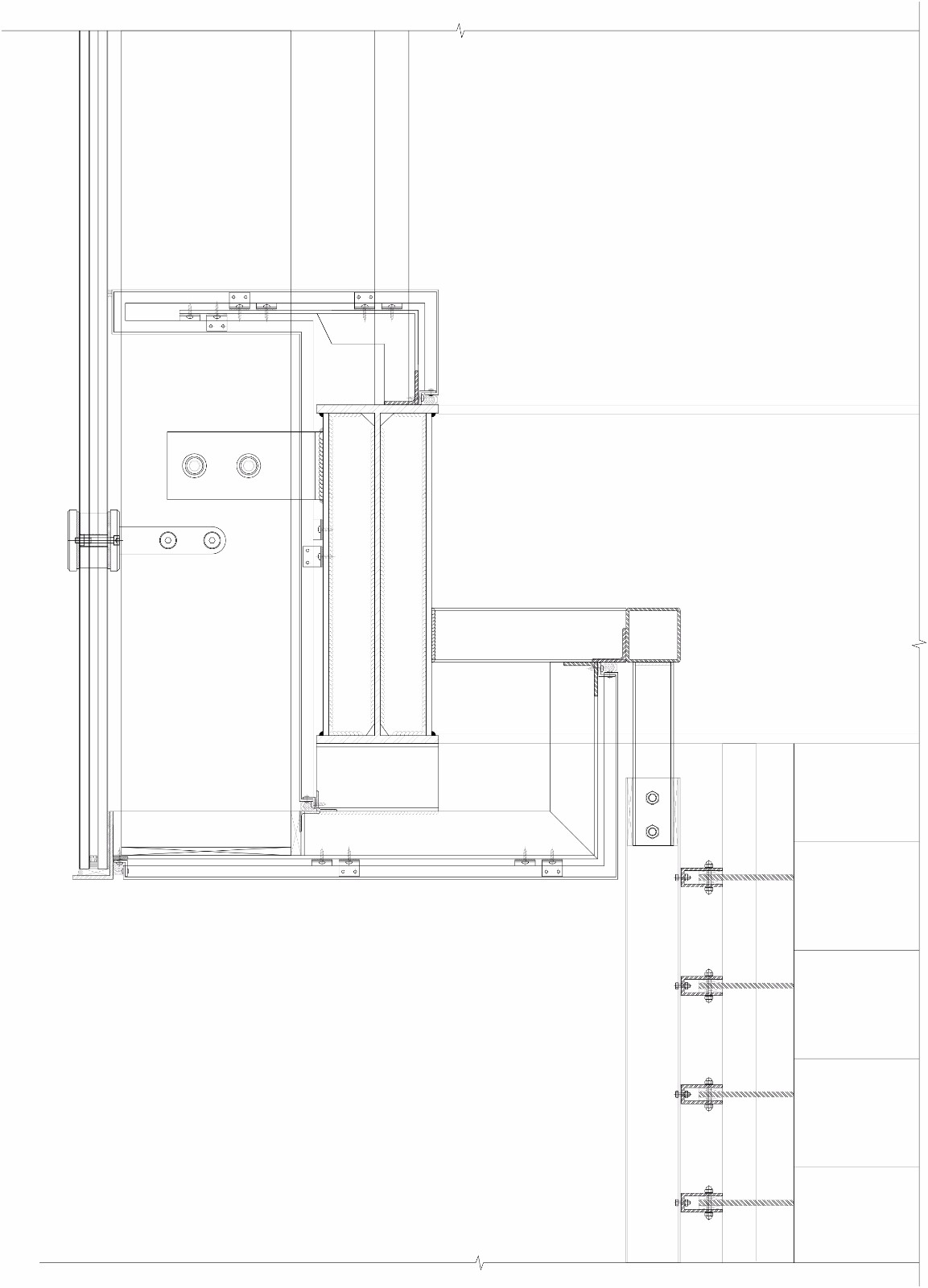
会所幕墙立面细部(底部)
颇度顶构造打样
模型
手绘草图
分析图
项目信息
项目规模:2000㎡
设计单位:水石设计
工作内容:建筑规划设计
设计团队:沈禾、杨纪华、马新领、朱梁斌、吴橄等
责编:王铭俊
来源:建筑学院

湖南日报新媒体



