兰州市城市规划展览馆选址位于兰州市城关区北滨河东路与人民路交口位置,黄河北岸。建设用地呈不规则形,东西向沿黄河展开。
兰州市作西部重要的中心城市,中华民族的母亲河黄河奔流而过,建筑取 “黄河石”为设计意向,整体表现为被黄河水积年累月冲刷的石头,同时,体块的切削处理则更像一块被石头包裹的黄河璞玉,呈现出历史和文化的沉淀。
场地周边区域发展成熟,景观条件得天独厚。滨河绿带在基地内延伸。建筑南侧临水部分的设计作为一个重点,以自然的坡地形态,使滨河道路延伸至黄河河面,创造亲水的城市空间,使建筑与环境浑然一体。
总平面图
建筑立面呈现体块切削的感觉,南侧沿河设计多处横向的玻璃嵌缝,如璞玉被冲刷之后的效果。同时,这种玻璃嵌缝更成为从建筑内部欣赏黄河美景的窗口。建筑空间顺应展陈建筑特点,采用回字形的展陈流线围绕城市总规模型展开,外部现浇清水混凝土立面在公共空间位置延伸至室内。
一层平面图
立面材料采用横向肌理的现浇清水混凝土,产生比较粗犷的肌理,以此表达自然化的建筑形态。为化解大面积混凝土材料带来的的单调感,在表面平整基础上设计自下而上逐渐过渡的横向凹缝,加强建筑的层次感,同时在近人凹缝内隐含黄河卵石肌理,使建筑的地方意味更加浓厚。
总平面图
一层平面图
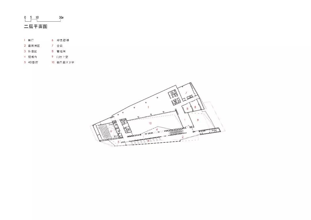
二层平面图
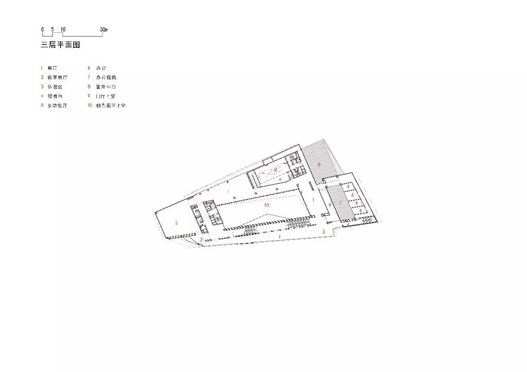
三层平面图
四层平面图
建筑师:中国建筑设计院本土设计研究中心
地址:人民路23号,城关区,兰州,甘肃,中国
主创建筑师:崔愷
设计团队:康凯,吴健,冯君,时红
建筑面积:16270.0 平方米
项目年份:2017
摄影师:张广源、风语筑
结构及机电工程设计:张淮湧,王树乐,陈越,杨东辉,郭然,郑坤,李磊
总图设计:高伟
展陈设计:上海风语筑展示公司
清水混凝土施工:重庆益汇达建筑工程有限责任公司
责编:王铭俊
来源:ArchDaily

湖南日报新媒体



