来自建筑师:雅昌(上海)艺术中心由原来的上海毛巾十六厂改造而成。整体改造以最大限度利用原有空间为原则,充分考虑建造的便捷性和经济性,以及原有工业空间的尺度、氛围与新的使用空间之间的结合。
艺术中心中的“丁乙楼”是整个园区的视觉中心,由建筑师与艺术家丁乙合作,基于原毛巾厂的污水处理站改造而成,有着比较鲜明的功能形体特色。建筑师建议艺术家利用他的绘画风格设计一款不同配色的瓷砖,作为主要的装饰面层材料,以期为原有的工业构筑物叠加一层新的意义。
剖面图
设计保留原有的污水处理斗,一部分作为底层咖啡厅的空间形态特色,一部分作为上部空间的室外庭园,原有的污水管道则成为新的雨水排放装置直接暴露在咖啡厅的室内。
设计通过新的功能如咖啡厅、书店、艺术展厅的植入,将原有的污水处理空间转换为一个新的艺术空间。艺术家丁乙设计的彩色十字图案的瓷砖强化了这栋建筑的艺术氛围,而原有的工业建筑的信息却并没有丧失。
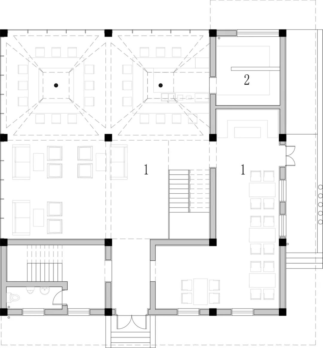
一层平面图
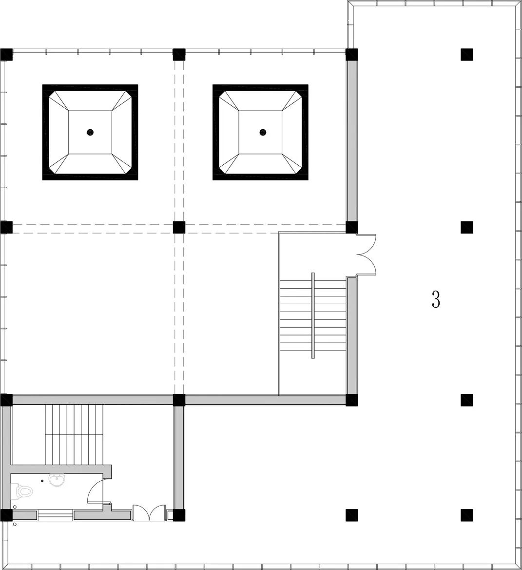
二层平面图
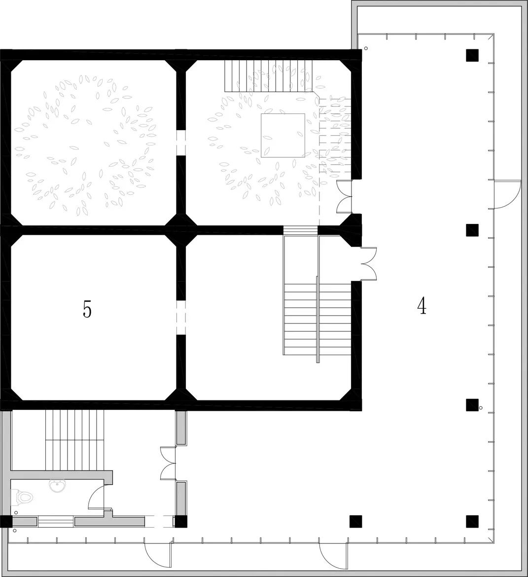
三层平面图
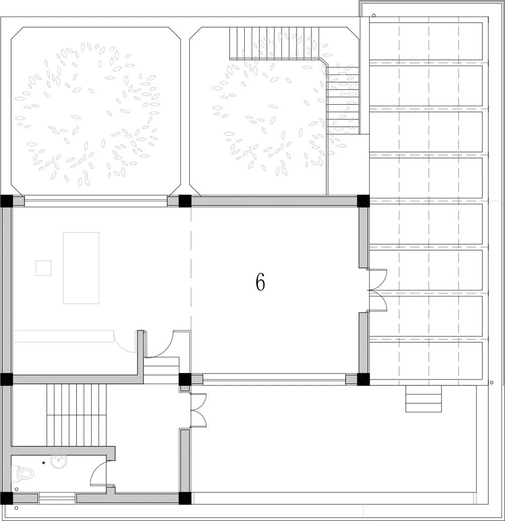
四层平面图
屋顶平面图
剖面图
建筑师:大舍建筑设计事务所
项目地址:中国上海市嘉定区嘉罗公路1022号
设计团队:柳亦春、陈屹峰、王龙海、范蓓蕾、陈鹍
结构与机电设计:上海杜鹃工程设计与顾问有限公司
室内设计:朱周空间设计咨询有限公司
建筑面积:18300.0 平方米
责编:万枝典
来源:ArchDaily

湖南日报新媒体



