拯救文化遗产
优思建筑事务所设计的展览中心位于长治市,中国山西省的一个三线城市。
在这次设计中最大的挑战,不仅要让长治市焕然一新,同时也要保留住山西省仅存的几处工业时代老厂房。
优思建筑负责长治市CBD的设计,而CBD的规划位置,恰好位于15座轴承厂房区域。这片厂区修建于1945年解放战争时期,有着70年之久的历史,是长治市极具文化价值和历史代表性的文化遗产。甲方于2011年通过拍卖成功地获得了这片土地。
在当今经济压力下,甲方计划了一个全新的城市发展方向,却忽视了遗留产物能带来的实际价值。优思建筑坚信,保护及重饰文化产物的形式与城市发展是可以并存的。
为了说服甲方保留老厂房,优思建筑借鉴和展示了国内与国际的一些成功案例,如北京798艺术园和1933上海屠宰场。
甲方在文化遗产周边的开发区域,也会因此增值不少,与甲方的市场团队营销构想达成一致。实际上优思建筑说服了当地保留了至少70%的文化遗产,并成功的转型为“文化创意园”。
(轴测图)
作为“文化创意园”的一部分,优思建筑在老厂房的第一处也是最大规模的改造成果区域 ----“长治博览中心”,主要功能:展览中心,政府会议中心, 办公空间和大礼堂。
目标:展示独一无二的空间品质
优思建筑在“城市展览中心”主要设计方案中,保留了厂房原有的特有元素,融入了少量恰到好处的当代建筑设计,恢复其独特空间品质的同时,也实现了博览会中心的功能性。
厂房建筑本身特有的反复结构元素,具有时代感的标语和规律的立面设计。原始的砖墙非常具有工业感,为了适应当前的需求,优思建筑对立面进行了一系列的改造设计。
(剖面图)
原轴承厂东面扩建了一个结构密集的办公区域。
优思建筑提议拆除所有的室内扩建区,改造成一个半开敞的空间,作为博览中心的主入口,使厂房原始立面表现出来。
扩改的本意是通过不加任何多余元素重构原始门窗,提升入场秩序性和可访性。通过外突的黑色金属框及透明双层玻璃强调了厂房南立面的节奏,同时转轴门的设计也便于户外的活动。
优思建筑没有对厂房水泥地面进行任何挖掘,而是在水泥地上方设计了一个宽敞,位于正中央的悬空 “T台”。
“T台”横跨东西两面,链接了整个展览中心。同时悬空的“T台”也巧妙地隐藏了所有的电线和管道系统。
天花垂挂的白色金属网“面纱”与中央“T台”遥相呼应。“面纱”悬挂在横梁与柱子间,完美地阐述了建筑本身的结构韵律,同时也柔化了整个空间的工业感。
房顶的日照光线透过“面纱”照射进来,这景象奇妙地定义了如何在大空间里体现人性化。金属网帘间和上方都装有灯具,为夜间不同场合提供了多元化的灯光配置。而夹层设计充分的利用了挑高空间,一楼是公共区域,夹层既保留了隐私,也可用作于开放式工作区,图书馆和会议空间。
剖面图
优思建筑“RE-VEIL”项目在这个全球城市化发展最快的国家,发起了有瞻望性的挑战。这个项目已成为国内发展中城市的参考标准,同样面临城市发展规划和文化遗产如何并存的问题。
经过周密地考虑,优思建筑对厂房进行了非常到位的新元素介入和改造,最终保持了建筑原始品质。在设计过程的早期阶段,灵活运用了当地材料和本地建筑工人资源。
优思建筑在庆祝文化遗产和为长治市民创造共同财产的同时,也帮助甲方和政府,达到他们的目标。
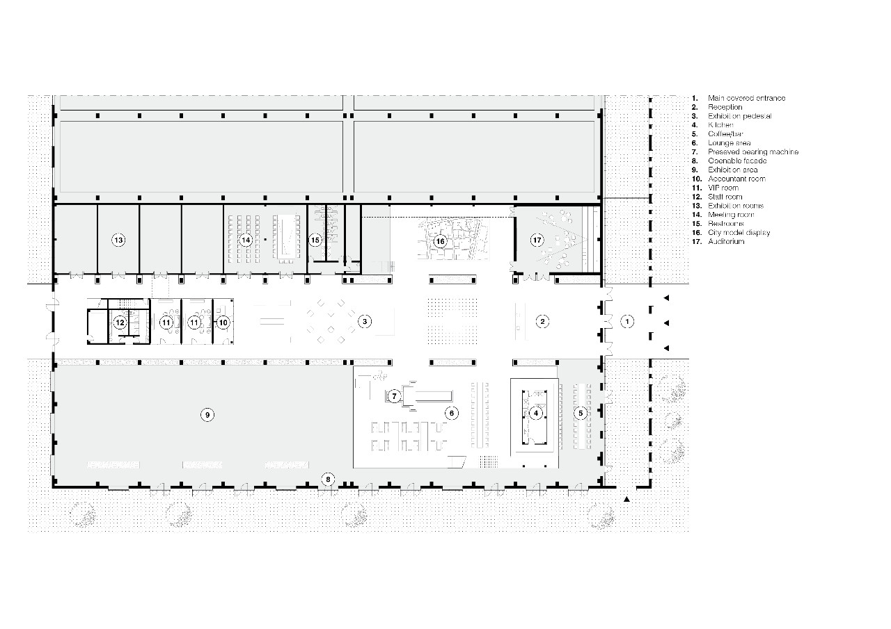
一层平面图
二层平面图
立面图
剖面图
细部节点构造图
建筑师:优思建筑(Superimpose Architecture)
项目地址:中国、山西省、长治市
建筑面积:6,000 平方米
项目年份:2018
责编:王铭俊
来源:ArchDaily

湖南日报新媒体

