珠海学院新校舍的建筑,充分突显一所高度互连互扣的学府。设计参考了香港高密度都市的特质,把垂直功能叠加及立体交通的概念融入校舍的设计中,把珠海学院设计成一个高度连扣,高度密集的城市缩影。
▼建筑外观
图书馆桥及学生会桥横跨裙楼草坡上空,既连接了东、西两翼,亦构成了一个标志性门廊。 建筑设计尽量减少占地面积以腾出最大的公共空间。大面积的功能空间如图书馆及大型教室等则悬挑在主体建筑外。建筑体块从主楼向各方悬挑而出,有如一座巨型树冠,象征了于树荫下乘凉学习的远古传统。
▼大面积的功能空间如图书馆和大型教室等悬挑在主体建筑外
▼立面细部
▼广场与海岸相连
▼图书馆桥及学生会桥横跨裙楼草坡上空
▼廊桥下倾斜的绿色坡地
▼廊桥内部的休息空间
▼从建筑内部仰望廊桥
▼餐厅
教学楼顶层的课室呈Y字形向外悬挑,配合天窗及反射墙,把阳光与自然对流引进至中间的走廊空间。建筑立面诚实地反映了其复杂而有趣的空间布局,其构图亦有着中文方块字中笔划与空间完美平衡的神韵。珠海学院新校舍的建设于精神上就有如创造一新字一样,为综合校园带来新的思维,为知识开拓无限的可能。
▼教学楼入口
▼顶层的课室呈Y字形向外悬挑,引入阳光与自然对流
▼礼堂
▼模型
▼渲染图
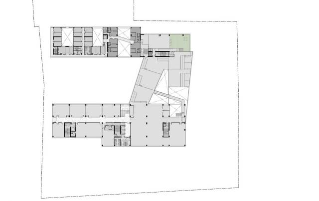
▼首层平面图
▼二层平面图
▼五层平面图
▼剖面图
责编:王铭俊
来源:谷德网

湖南日报新媒体



