韶山毛泽东同志纪念馆
The Memorial Hall of Mao Zedong in Shaoshan
(2015年度湖南省优秀工程勘察设计一等奖作品)
杨瑛/YANG Ying
毛泽东同志纪念馆位于韶山冲引凤山下,始建于1964年,经多次扩建而成,时至今日,该馆已到50年设计使用年限,不能满足现代陈展和安全使用要求。为此,经国内和省内知名专家进行多次会议论证,中央及省委省政府最终决定,以“扩建改造、保留修缮相结合的基本方式。加固修缮、增强安全性,完善功能、增加舒适感,整旧如旧、延续历史”的原则对纪念馆进行整体改扩建。
一、改扩建的基本方式
1.按照保留修缮1964年建筑,拆除1969年以后建筑,原址改扩建纪念馆。延续庭院式山地建筑的格局,尊重原有的自然山形地貌环境,尽量减少改造对周边山体的破坏,实现建筑与核心景区周边建筑及自然环境的相互协调、和谐共生,体现韶山特色和时代精神。
2.尽量扩大陈展空间,合理组织和整合交通参观流线,采用现代陈展方式,全方位、立体化、多样化地展示毛主席的丰功伟绩。
3.完善保留部分的配套设施设备,加强无障碍设计和消防安全设施,增强空间的人性化与舒适感,符合现行建筑设计相关规范。
二、总体布局
整体保持场地原有山地建筑的自然地形地貌和庭院式格局,保留1964年兴建建筑,对内部功能进行调整改造,修缮加固;拆除1969年以后兴建的展厅、办公楼、库房、武警营房等建筑,原址重建大空间展室和辅助用房。
为提高建筑消防等级,利用原有山体护坡,在南侧增设联系东、西广场的消防通道,以此方便东西广场的联系,也为施工时提供便道。保证了韶山山形地势脉络的延续,实现建筑与自然的和谐统一。
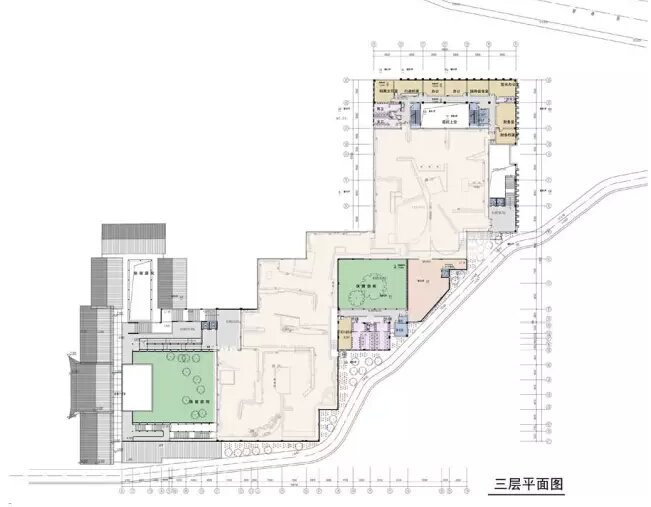
三、平面功能
1、保留修缮1964年建筑,完善设施设备,提高安全性与参观的舒适性
对保留的1964年兴建部分建筑的梁、柱、墙体、屋顶等构件仔细分析、逐一检测编号,并进行系统的结构计算。对能继续使用的结构构件,进行加固处理,需要替换的构件经过精密测量,原样复制。同时,统筹考虑水、电、空调,改造和完善设备设施系统,对室内部分进行统一装修,提高舒适度和安全保准,确保新建与保留部分风格和标准一致。
为加强各展室之间的联系,拆除打通二、三、四室之间的隔墙,将其调整为临时展厅,将会议室改造为讲解员休息室,原贵宾室改造为办公室,并对原卫生间进行翻新改造,原一室改造为放映厅,利用原五室新建展厅与序厅之间的高差,设置设备用房和卫生间;利用原商店、十四室与序厅之间的高差,增设贵宾休息厅和专用电梯与通道。改造后的临时展厅既与序厅主要参观通道紧密相连,其参观路线前后贯通,又自成相对独立的陈展体系。
2、拆除1969年以后兴建建筑,原址重建扩建符合现代陈展方式的连续性大展示空间
将原五室改造为主要交通厅,通过连续的直跑楼梯、坡道及电梯组成合核心交通,使观众可以便捷的到达到新主展厅。主展厅前部是在拆除原杂物间、商店、六、十一、十二、十三、十四室及其之间的庭院,在保持原有建筑用地范围不变的基础上扩建而成,展厅净高9m、面积为1600平方米。
在同一标高处,拆除原七、八、九、十、六烈士展室及其之间的庭院,原址扩建一个面积达1800平方米的无中柱大型展厅,净高9m。两大展厅构成了毛主席生平展示馆主厅,通过声、光、电的变换和场景的再现,以全方位立体化的方式,展示毛泽东主席辉煌的革命历程。两大展厅之间保留一个庭院,将其他庭院保留树木移置在内,并沿庭院设置休息厅、卫生间等其他配套用房,为参观者提供了一个休息休闲的场所。
同时,在展厅北端利用主展厅与新建东广场之间的高差并围绕保留的树木,设置四层办公管理建筑,临韶峰路设置出入口,既有效的利用了空间高差,又加强了纪念馆、遗物馆之间的联系和管理。
3、交通组织与参观流线设计
主要交通由4.5m宽的直跑楼梯、自动扶梯和电梯组成,可以便捷迅速地运送观众,避免了参观高峰人流的压力和人流堵塞。电梯和扶梯可有效解决残障人员的通达问题,和展品器物的运送问题。
主要参观路径从毛泽东同志广场开始,观众经由纪念馆主入口进入序厅,从左边乘电梯或走直跑楼梯和坡道进入展厅,参观完两大主展厅构成的生平馆后,从东端出口乘电梯和直跑楼梯经门厅至室外大台阶进入东广场至遗物馆参观。
四、建筑造型
整个设计保持和发展了纪念馆原有建筑风格与造型要素,并运用新技术和新工艺进行新的建筑艺术创造。对1964年建筑的造型与立面风格进行严格保护和适当修缮;新建部分建筑以原建筑白墙、圆柱、窗棂、坡屋面为母题,充分利用现代技术依山而建,就势而成。建筑外部结构采用圆柱形式,内部分结构采用方柱形式,整个建筑建立在一个层叠的石基上,石墙烘托,盛象开元,通过石墙和满地星光大台阶以及绿化的点染,并借助最后大空间展厅的高扬,承前启后,情境交融,诗性化地象征了毛泽东主席创立的开天辟地的伟业和光辉伟大的形象。整体上营造构建了一个崇高的革命传统教育圣地,表达了我们对开国领袖最深切的缅怀与最崇高的敬意。
万花映日红烂漫
韶峰引凤伟人迈
辟地开天千古赞
东方白
故园百年新颜换
项目信息
主创建筑师:杨瑛
设计单位:湖南省建筑设计院创作设计研究中心·杨瑛工作室
项目地点:湖南省韶山市
设计时间:2012.06-2013.03
建成时间:2013.12
建筑面积:10671m2
设计团队:杨瑛、贺丽菱、李秀峰、王道君、肖艺、周朝亮、张智航、肖扬、王四清、陈丰、邓超、陈旭丰、吴诚、李文波、哈恩明、刘丽英
摄影:杨瑛
作者简介
杨瑛,建筑学博士,教授级高级建筑师,国家一级注册建筑师,APEC国际注册建筑师,当代中国百名建筑师,湖南省工程勘察设计大师。现任湖南省建筑设计院总建筑师、湖南省建筑师学会理事长、湖南省土木建筑学会副理事长、湖南省设计艺术家协会副主席、中国建筑学会理事、中国建筑学会建筑师分会理事。荣获两届中国建筑学会青年建筑师奖、被评为全国建设系统劳动模范。主持和参与工程设计四百多项,荣获国家优秀设计银奖3项、铜奖2项,全国优秀勘察设计一等奖2项、二等奖6项,湖南省优秀设计一等奖19项、二等奖7项。著有《走向反思的建筑设计学》、《心象》、《埏土集(上、下)》,发表论文40余篇。
责编:杨硕
来源:湖南设计

湖南日报新媒体



